Brunrigg is located in the beautiful Teign Valley close to Dartmoor National Park.
We are thinking of selling this Detached, Versatile 5 Bedroom Family Property on around 1.22 acres, Brunrigg provides enormous flexibility that can be adapted quite easily to satisfy individual requirements.
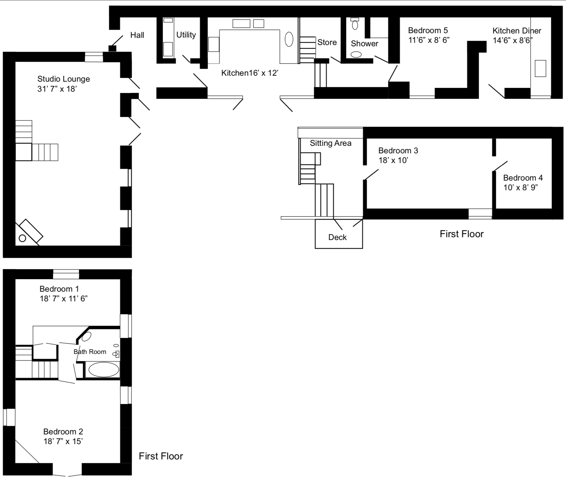
The Studio Lounge on the ground floor was previously being used, as a Photographic Studio, So an IT Studio or any work from home situation could also be an option.
Outside there is potential for Equine and or Smallholding use with three Stables of around 3.42 acres.
The Orchard is around 1.75 acres - To be retained.
Once, Brunrigg was comprised of three stone Barns, A Shire horse Stable and Hay Loft, The Linhay and The Old store Barn with a separate entrance from the garden as well as the House Kitchen.
Approx 2,000 Sq Feet.
This rural setting has easy access to The Devon Expressway, M5, Exeter Airport and the Coast.
Local Shops and facilities 2 miles.
Other amenities include, Golf, Horse Riding, Game Fishing, Cycling, Gymnasium, Shooting, Walking, Swimming, Football, Rugby, Cricket, Rock Climbing plus many more country pursuits.
The Shire Stable and Hay Loft - Ground Floor
The ground floor was used as a Photographic Studio.
Lounge (31' 7" x 18')
With Double Doors to Garden, Wood-burning stove, and open plan stairs to upper floor.
The Shire Stable and Hay Loft - First Floor
Bedroom 1 - Master Bedroom (18' 7" x 11' 6")
The front window overlooks Pastures and The River Teign. This delightful bedroom has Exposed Roof Beams and a built in Double Door Wardrobe.
Bedroom 2 - Hay Loft (18' 7" x 15')
Exposed "A" Frame Roof Beams, Windows on either side with Double French Windows to raised Vegetable garden.
Bathroom (7' 6" x 8' 6")
Pedestal Wash Basin, WC, Bath with Shower and Bidet, Exposed Roof Beams.
The Linhay
Front door in to L shape Entrance Hall, door to,
Utility Room (8'6" x 6')
Hot water indirect cylinder, Washing Machine Deep Glazed Sink with work surface.
Kitchen (16' x 12')
Fitted kitchen with AGA cooker, Turbo Oven, 2x Gas Hobs, Floor to Ceiling Glazing on one side with Double French Windows to Garden
Stairs up to upper floor.
Sitting Area (10' x 12')
Window viewing Pastures, The River Teign and Garden. Double French Windows to Outside raised Deck (8' x 5') over looking Garden.
Old Barn - First Floor
Bedroom 3 (18' x 10')
with Wood-burning stove, Exposed Roof Beams.
Through to
Bedroom 4 (10' x 8' 9")
Currently used as an Office.
Old Barn - Ground Floor
Nanny/Granny Flat/Boot Room
From Kitchen Steps down to
Storeroom (8' x 5')
Shower room, WC and Sink.
Bedroom 5 (11' 6" x 8' 6") leading to
Kitchen Diner (14' 6" x 8' 6")
Entrance From Garden.
Work surface with stainless steel sink.
Outside




To the West of the House is a banked area rising up to woodland where we once bred Tamworth Pigs, together with a small Barn and a Farrowing house on a hard standing with stock management gates with vehicle access from the lane adjacent to the house.
Half of the wood is fenced off for the Boars wood.
North of the house are two paddocks, divided by a small stream with three Stables and the footprint of a Goat Shed.
With many mature deciduous and Fruit trees along with cover growth.
The paddocks are entered via Lyneham Cross adjacent to the house with a separate vehicle gate along the Valley road to enter the Top Field.
North side, Parking Area laid to stone. (32' x 28')
Tool Shed housing Bore Hole equipment. (17' x 8')
South Side, Parking Area laid to stone. (30' x 14')
5 Bar Gate to enclosed Garden, mainly laid to lawn, with Tiled Log Store. Outlook to a bank below the Wood. This makes an excellent Wild Bird viewing area.
Raised Upper Vegetable Garden with Greenhouse.
Services
Mains Electricity, Private Sewage, Private Water (Bore Hole).
Mains Water is also connected to the property.
Please note all dimensions are approximate.
Selling Agent
